Residentie Zoë is een nieuwbouwproject gelegen in het centrum van het rustige Ede. Bij de ontwikkeling van dit project werd er rekening gehouden met een rustgevende en verzorgde architecturale invulling: gebouwen en inplanting vormen een modern, harmonisch en esthetisch geheel, achteraan voorzien van een mooi stukje groen. Deze woonparel is voorzien van alle comfort en wordt afgewerkt met materialen van topkwaliteit!
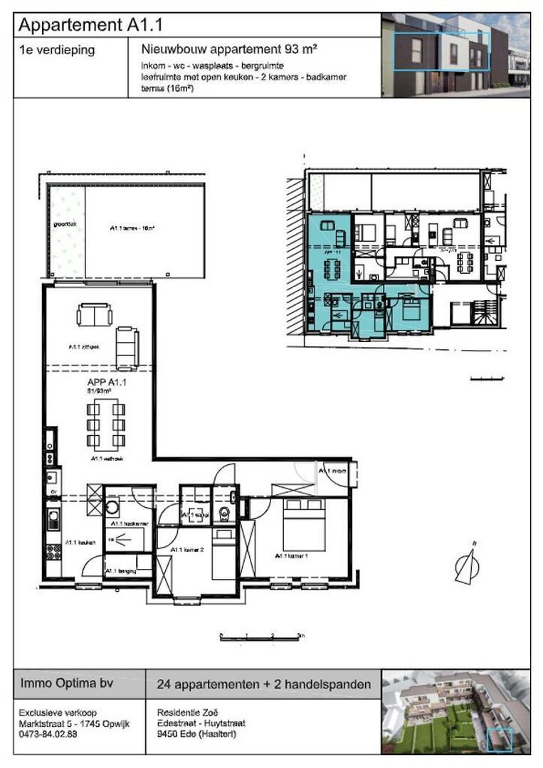
Dit stijlvolle appartement van 93m² is gelegen op de eerste verdieping van blok A. We komen binnen in dit appartement via de inkom en gaan zo naar de 2 slaapkamers, berging, badkamer, apart toilet en de leefruimte met open keuken en aansluitend terras. Mogelijkheid tot aankoop van ondergrondse berging, autostaanplaats of garagebox. Prijs excl. BTW & kosten.
(Mogelijk aan 6% BTW onder voorwaarden!)
(WgLk-Gvv-Vg-Gvkr-Gmo)
- EPB in opmaak.
- Niet gelegen in overstromingsgevoelig gebied.
Dit stijlvolle appartement van 93m² is gelegen op de eerste verdieping van blok A. We komen binnen in dit appartement via de inkom en gaan zo naar de 2 slaapkamers, berging, badkamer, apart toilet en de leefruimte met open keuken en aansluitend terras. Mogelijkheid tot aankoop van ondergrondse berging, autostaanplaats of garagebox. Prijs excl. BTW & kosten.
(Mogelijk aan 6% BTW onder voorwaarden!)
(WgLk-Gvv-Vg-Gvkr-Gmo)
- EPB in opmaak.
- Niet gelegen in overstromingsgevoelig gebied.
indeling
- Keuken
- Ja
- Slaapkamers
- 2
- Slaapkamer 1
- 12 m²
- Slaapkamer 2
- 8 m²
- Badkamers
- 1
- Badkamer
- 5 m²
- Terras
- Ja
- Terrasoppervlakte
- 16 m²
financieel
- Prijs
- € 275.000
- Beschikbaarheid
- Bij oplevering
- Verkoop onder BTW stelsel
- Ja
comfort
- Gemeubeld
- Nee
- Lift
- Ja
gebouw
- Bewoonbare oppervlakte
- 93 m²
- Type bebouwing
- Gesloten
- Bouwjaar
- 2023
- Verdieping
- 1
- Oriëntatie voorgevel
- Zuidoost
energie
- Type ramen
- Aluminium
- Dubbel glas
- Ja
- Verwarming
- warmtepomp
- Type verwarming
- Individueel
technieken
- Elektriciteit
- Ja
- Telefoonbekabeling
- Ja
stedenbouwkundige informatie
- Bestemming
- Woongebied met landelijk karakter
- Bouwvergunning
- Ja
- Verkavelingsvergunning
- Nee
- Voorkooprecht
- Nee
- Dagvaarding
- Geen rechterlijke herstelmaatregel of bestuurlijke maatregel opgelegd
- Overstromingsrisico
- Niet gelegen in een overstromingsgevoelig gebied
- Bodemattest
- Ja
Interesse in deze eigendom?
Dimitri De Donder
0475 79 73 06
ref: 7340171
Blijf op de hoogte
Schrijf u inOp zoek naar iets specifiek? Laat uw zoekwensen hier achter en we zorgen ervoor dat u het juiste aanbod als eerste in uw mailbox krijgt
Gratis schatting
Wil u graag de échte verkoopwaarde van uw woning kennen? Vraag nu een gratis schatting voor verkoop!
Vraag hier aan
Wenst u te verkopen
U wil uw woning, appartement of bouwgrond snel en zorgeloos verkopen aan een goede prijs? Dan bent u bij Optima uit Opwijk aan het juiste adres.
Ik wil verkopen