Residentie Nova is een nieuwbouwproject gelegen in het centrum van het rustige Opwijk. Bij de ontwikkeling van dit project werd er rekening gehouden met een rustgevende en verzorgde architecturale invulling: gebouwen en inplanting vormen een modern, harmonisch en esthetisch geheel, achteraan voorzien van een mooi stukje groen. Deze woonparel is voorzien van alle comfort en wordt afgewerkt met materialen van topkwaliteit!
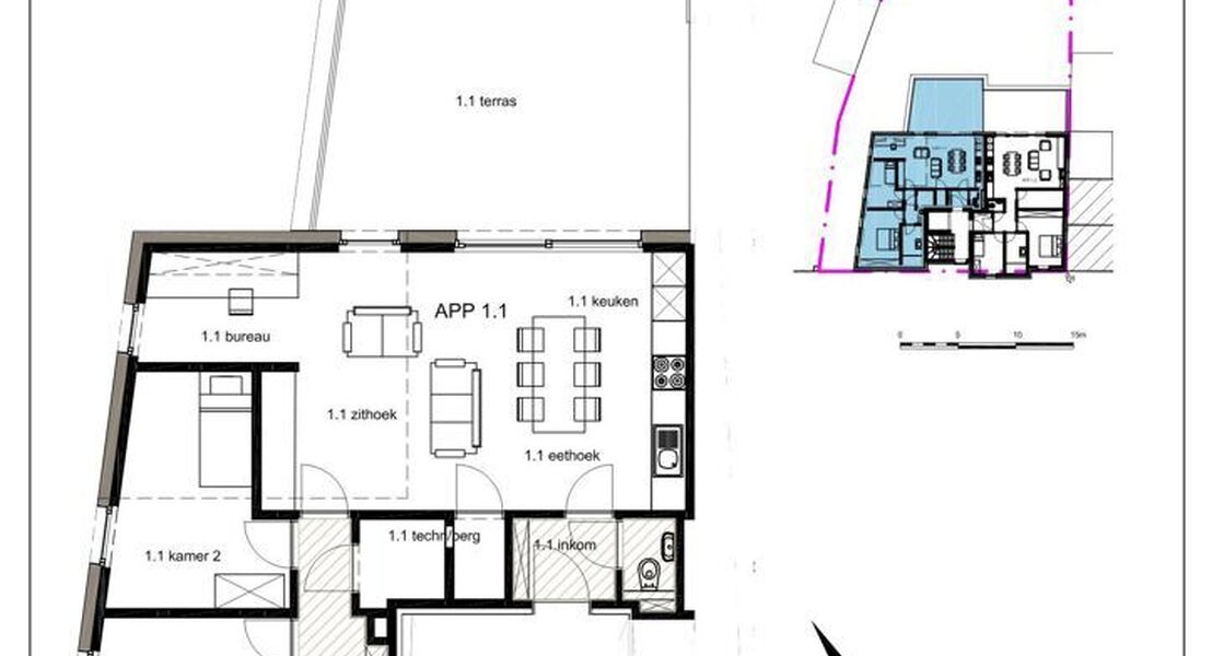
Dit stijlvolle appartement van 98m² is gelegen op de eerste verdieping. We komen binnen in dit appartement via de inkomhal met apart toilet en gaan zo naar de woonkamer met aansluitend met de open keuken en open bureel. Via de nachthal kom je aan de2 slaapkamers, de badkamer en de technische ruimte. Aan de woonkamer bevind zich een prachtig terras van 28m². Mogelijkheid tot aankoop van ondergrondse berging, autostaanplaats of garagebox. Prijs excl. BTW & kosten.
(Mogelijk aan 6% BTW onder voorwaarden!)
- Vg/Wg/Gmo/Gvkr/Gvv
- EPB in opmaak.
- Niet gelegen in overstromingsgevoelig gebied - P-score: D - G-score: B
Dit stijlvolle appartement van 98m² is gelegen op de eerste verdieping. We komen binnen in dit appartement via de inkomhal met apart toilet en gaan zo naar de woonkamer met aansluitend met de open keuken en open bureel. Via de nachthal kom je aan de2 slaapkamers, de badkamer en de technische ruimte. Aan de woonkamer bevind zich een prachtig terras van 28m². Mogelijkheid tot aankoop van ondergrondse berging, autostaanplaats of garagebox. Prijs excl. BTW & kosten.
(Mogelijk aan 6% BTW onder voorwaarden!)
- Vg/Wg/Gmo/Gvkr/Gvv
- EPB in opmaak.
- Niet gelegen in overstromingsgevoelig gebied - P-score: D - G-score: B
indeling
- Woonkamer
- 35 m²
- Keuken
- Ja
- Slaapkamers
- 2
- Slaapkamer 1
- 16 m²
- Slaapkamer 2
- 11 m²
- Badkamers
- 1
- Badkamer
- 6 m², type: Alle comfort
- Toiletten
- 1
- Douchekamers
- 1
- Terras
- Ja
- Terrasoppervlakte
- 28 m²
financieel
- Prijs
- € 400.000
- Beschikbaarheid
- Bij oplevering
- Verkoop onder BTW stelsel
- Ja
ligging
- Omgeving school
- Ja
- Omgeving openbaar vervoer
- Ja
- Omgeving winkels
- Ja
comfort
- Gemeubeld
- Nee
- Videofoon
- Ja
- Lift
- Ja
gebouw
- Bewoonbare oppervlakte
- 98 m²
- Type bebouwing
- Halfopen
- Bouwjaar
- 2025
- Verdieping
- 1
energie
- Type ramen
- Aluminium
- Dubbel glas
- Ja
- Verwarming
- warmtepomp
- Type verwarming
- Individueel
technieken
- Elektriciteit
- Ja
stedenbouwkundige informatie
- Bestemming
- Woongebied
- Bouwvergunning
- Ja
- Verkavelingsvergunning
- Nee
- Voorkooprecht
- Nee
- Dagvaarding
- Geen rechterlijke herstelmaatregel of bestuurlijke maatregel opgelegd
- Overstromingsrisico
- Niet gelegen in een overstromingsgevoelig gebied
- G-score
- B
- P-score
- D
- Bodemattest
- Ja
Interesse in deze eigendom?
Dimitri De Donder
0475 79 73 06
ref: 7586478
Blijf op de hoogte
Schrijf u inOp zoek naar iets specifiek? Laat uw zoekwensen hier achter en we zorgen ervoor dat u het juiste aanbod als eerste in uw mailbox krijgt
Gratis schatting
Wil u graag de échte verkoopwaarde van uw woning kennen? Vraag nu een gratis schatting voor verkoop!
Vraag hier aan
Wenst u te verkopen
U wil uw woning, appartement of bouwgrond snel en zorgeloos verkopen aan een goede prijs? Dan bent u bij Optima uit Opwijk aan het juiste adres.
Ik wil verkopen