Residentie Zoë is een nieuwbouwproject gelegen in het centrum van het rustige Ede. Bij de ontwikkeling van dit project werd er rekening gehouden met een rustgevende en verzorgde architecturale invulling: gebouwen en inplanting vormen een modern, harmonisch en esthetisch geheel, achteraan voorzien van een mooi stukje groen. Deze woonparel is voorzien van alle comfort en wordt afgewerkt met materialen van topkwaliteit!
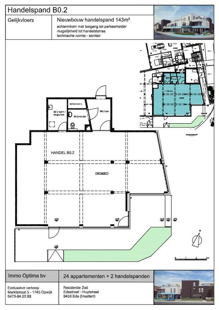
Deze goedgelegen handelsruimte geeft de ideale gelegenheid om jouw zaak in het oog te laten springen van potentiële klanten. Deze ruimte kan volledig naar de smaak van de klant ingericht worden en is dus volledig af te stemmen naar de noden van jouw bedrijf. Verder is er een sanitaire ruimte en technische ruimte voorzien binnenin en buiten is er een mogelijkheid tot het aanleggen van een handelsterras van 43m². Mogelijkheid tot aankoop van ondergrondse berging, autostaanplaats of garagebox. Prijs excl. BTW & kosten.
(Mogelijkheid aan 6% BTW onder voorwaarden!)
(WgLk-Gvv-Vg-Gvkr-Gmo)
Maatregelenregister: nee
- EPB in opmaak.
- Niet gelegen in overstromingsgevoelig gebied.
Deze goedgelegen handelsruimte geeft de ideale gelegenheid om jouw zaak in het oog te laten springen van potentiële klanten. Deze ruimte kan volledig naar de smaak van de klant ingericht worden en is dus volledig af te stemmen naar de noden van jouw bedrijf. Verder is er een sanitaire ruimte en technische ruimte voorzien binnenin en buiten is er een mogelijkheid tot het aanleggen van een handelsterras van 43m². Mogelijkheid tot aankoop van ondergrondse berging, autostaanplaats of garagebox. Prijs excl. BTW & kosten.
(Mogelijkheid aan 6% BTW onder voorwaarden!)
(WgLk-Gvv-Vg-Gvkr-Gmo)
Maatregelenregister: nee
- EPB in opmaak.
- Niet gelegen in overstromingsgevoelig gebied.
indeling
- Terrasoppervlakte
- 43 m²
financieel
- Prijs
- € 330.000
- Beschikbaarheid
- Bij oplevering
- Verkoop onder BTW stelsel
- Ja
gebouw
- Bewoonbare oppervlakte
- 143 m²
- Type bebouwing
- Gesloten
- Bouwjaar
- 2023
- Breedte vitrine
- 16.69
- Oriëntatie voorgevel
- Zuidoost
energie
- EPC unieke code
- EPB in opmaak
- Type ramen
- Aluminium
- Verwarming
- warmtepomp
technieken
- Elektriciteit
- Ja
- Telefoonbekabeling
- Ja
stedenbouwkundige informatie
- Bestemming
- Woongebied met landelijk karakter
- Bouwvergunning
- Ja
- Verkavelingsvergunning
- Nee
- Voorkooprecht
- Nee
- Dagvaarding
- Geen rechterlijke herstelmaatregel of bestuurlijke maatregel opgelegd
- Overstromingsrisico
- Niet gelegen in een overstromingsgevoelig gebied
- Bodemattest
- Ja
Interesse in deze eigendom?
Dimitri De Donder
0475 79 73 06
ref: 7340232
Blijf op de hoogte
Schrijf u inOp zoek naar iets specifiek? Laat uw zoekwensen hier achter en we zorgen ervoor dat u het juiste aanbod als eerste in uw mailbox krijgt
Gratis schatting
Wil u graag de échte verkoopwaarde van uw woning kennen? Vraag nu een gratis schatting voor verkoop!
Vraag hier aan
Wenst u te verkopen
U wil uw woning, appartement of bouwgrond snel en zorgeloos verkopen aan een goede prijs? Dan bent u bij Optima uit Opwijk aan het juiste adres.
Ik wil verkopen